Marne-la-Vallee School

 

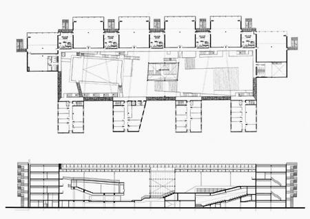
這座建築學院座落於巴黎近郊.創造了一個大型的室內空間.其內部空間設置的禮堂座落於整體建物裡重要位置.創造建物內事件發生的動能核心(彷彿一台發電機).
計畫整體資金非常有限的情形之下.建築物彷彿一座工業化的建物.
而內部的皮層運用了雙層木質構造來吸收室內的聲音.

在構想這座位於巴黎30分鐘車程建築學院時發現兩大問題.
第一為未來十年建築教育將會成形之方向
第二為如何創造這個位於都市邊緣.社會經濟邊緣以及文化邊緣之建築學院的吸引力.

在現在世界裡幾個重大革變之下如資訊以及論敘人們開始為了對談.議論開始集中了起來

關於這個案子設計目標為將空間創造為一個流動性交換性所構成的空間.這個新的設計案將不會像是從前所流行的布雜包浩斯等等學院.

這個案子依照一個特定主題來設計
創造一個產生事件的動能核心.(generators發電機).像是一座濃縮的城市.運用潛在的空間來進行文化與社會關係之間的轉換與交替
 

回Bernard Tschumi首頁

回李星鋒首頁